Лестница из половых досок: расчёт и размещение

Строить лестницу в своём доме я начал не подозревая, что у плотников есть целая теория, посвящённая этому делу. Как-то не видел в этом деле ничего особо сложного – ступеньки и ступеньки, не провалиться бы да не оступиться, ну и ровно чтобы было, красиво. Собственно я её так и сделал, по своим соображениям. Уже позже сосед, разглядывая моё произведение, удивился, как бы сами такие конструкции лишь бы кто не делает, то есть на эту работу надо нанимать специалиста, и не лишь бы какого. Тем не менее, всё получилось, по моему, не плохо.

Чтобы понятней было, о чём речь фотография того, что было задумано и получилось в итоге.

Деревянная лестница c двумя поворотами

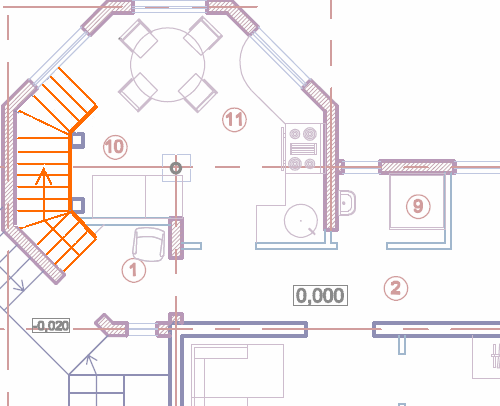
Лестница на плане дома
Лестница на плане дома

От первоначального плана было решено отойти и подъём перевернуть в обратную сторону. Идея начала этой лестницы на кухне мне не понравилась

Как-то на этапе соображений, что к чему вопросов было два: как правильно разметить ступеньки и как сделать так, чтобы они не прогибались под весом человека и соответственно не скрипели.

Расчёт ступенек

Ширина лестничного марша бралась такой же, как и ширина дверного проёма 90 см – это норма из какого-то СНиПа. Ширина эта учитывалась ещё на этапе строительства стен-перегородок и отображена в плане.

За высоту и ширину каждой ступени попытался взять стандартные размеры в железобетонном лестничном пролёте – 15 : 30 см (как в ступеньках крыльца). В этом случае при высоте потолка в 2,5 метра длина моей лестницы по полу (проекция) оказалась равна 5 метров. Такой длинный пролёт нужно было бы растягивать по всему первому этажу и при этом закладывать одно из окон.

Пришлось рассчитывать всё от возможных габаритов, и тут тоже была сложность: лестница планировалась не прямая, а с двумя поворотами на 45°. Был обмерены стены лестничного пролёта. Из длин стен вычислялась длина лестницы по средней линии. Далее расчёт основывался на том, что посередине лестничного марша шаг ступеней будет одинаковым. В расчете этот шаг получился довольно малым, при высоте ступени в 17 см всего 22 см. Чтобы увеличить площадь ступени они делались со свесом в 2-3 см. В итоге ступенька получалась шириной 24-25 см

Уже позже при описании этой темы нашёл книжку, из неё → Деревянные лестницы. Основные параметры

Для горизонтальной части ступеней использовалась половая доска с пазами толщиной 35 мм, оставшаяся от монтажа деревянного пола. Для ширины лестничного марша в 90 см такой толщины не достаточно и если бы ступени делались без подступенка, то прогибаемость таких досок была бы слишком большой. Это нужно учитывать тем, кто желает сконструировать лестницу только из горизонтальных досок, как на следующем фото.

Лестница без подступенек
Лестница без подступенек

Нагрузка в середине деревянной лестнице с подступенком
Нагрузка в середине деревянной лестницы с подступенками.

Слова по теме деревянных лестниц → марш, высота лестницы, подступенок, проступь, крутизна и уклон, ширина марша, тетива, косоур, угол наклона ступеней, забежные ступени.

Для понимания того как лестница прошла через потолок можно вернуться на страницу → Межэтажное перекрытие. Там отмечено, что балки перекрытия сразу монтировались с учётом будущей лестницы.

В проекте были нарисованы две балки-опоры, но один столб я ставить не захотел, поэтому вся конструкция несколько усложнилась. Чтобы нагрузка от потолочной балки передалась на оставшуюся опору, была сделана косая балка с усиленным креплением. Крепление и сама эта балка на следующих фото.

Косая балка для лестницы Балка для лестницы
Косая балка для лестницы. Крепление шурупом 10х180 и малая часть тетивы. Скреплено 4-мя шурупами 6х90

Тетива поворотной лестницы Шурупы в тетиве лестницы
Вся конструкция, своеобразная тетива поворотной лестницы и шурупы в ней.

Дальше на ⇒
Разметка ступенек, крепления к стенам уголком

⇐ Назад на
Стены-перегородки из газосиликата